/ 7

Hundert Morgen: Attraktive 3 Zimmer-ETW im Grünen


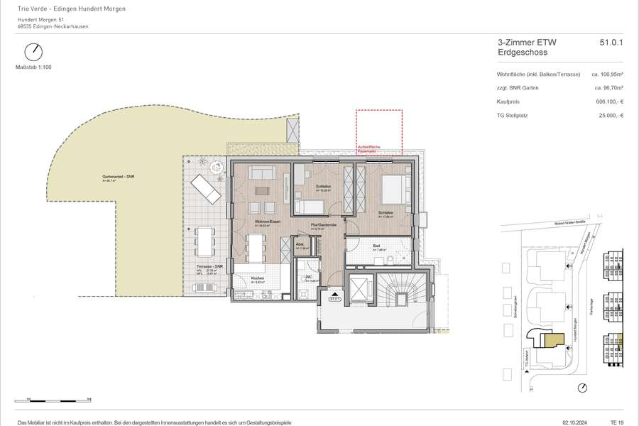
Kaufpreis
606.100,00 EUR

Wohnfläche
100,95 m2

Zimmer
3

Balkon / Terrasse
Keller
Personenaufzug
Gäste-WC
Garten/ -mitbenutzung
Provisionsfrei

Hundert Morgen 51
68535 Edingen-Neckarhausen

Standortkarte

Kosten

Kaufpreis:

606.100,00 EUR

Garage/Stellplatz-Kaufpreis:

25.000,00 EUR

Provision für Käufer:

keine


Ausstattung

Wohnungstyp:

Erdgeschosswohnung

Etage:

Etagenzahl:

3

Schlafzimmer:

2

Badezimmer:

1

Gäste-WC:

Keller:

Personenaufzug:

Einbauküche:

Objektzustand:

Erstbezug

Erstbezug Baujahr:

Qualität der Ausstattung:

gehoben

Heizungsart:

Fußbodenheizung

Energieträger:

Solar-Heizung

Energieausweis:

-

Haustiere:

keine Angabe

Anzahl Garage/Stellplatz:

1

Rollstuhlgerecht:

keine Angabe


Objektbeschreibung

– Zwischen Hundert Morgen und Starenweg – Drei Mehrfamilienhäuser – 27 Eigentumswohnungen – 2 bis 4 Zimmer – Ca. 61 m² bis 132 m² Wohnfläche – Freiflächen mit Südwestausrichtung – Besonderes Energiekonzept Die drei Gebäude unseren neuen Projekts TRIO VERDE Edingen sind entsprechend ihrer Größe als Zweispänner bzw. Dreispänner mit Dachterrassen-Wohnungen geplant. Die Eingänge liegen jeweils an einem Quartiersweg. Alle Häuser haben einen Aufzug. Eine öffentliche Durchfahrt durch das Gebiet besteht nicht, sie ist nur Servicefahrzeugen und der Feuerwehr vorbehalten. Anbeiden Zufahrten befinden sich Besucher-Stellplätze. In der Tiefgarage sind 30 großzügige PKW-Stellplätze sowie Fahrradstellplätze vorgesehen, diese sind über eine gesicherte und überdachte Rampe gemeinsam erschlossen. Freuen Sie sich auf ein Wohn-Ensemble im Grünen, das modernes Wohnen und nachhaltige Architektur vereint.


Lage

Das Wohnprojekt TRIO VERDE Edingen wird auf einem ehemaligen Tennisplatz- Areal realisiert. Die drei Gebäude entstehen in direkter Nachbarschaft zu den Grünflächen des Pestalozzi-Sportgeländes, umgeben von Feldern und altem Baumbestand. Die Zufahrt zur Tiefgarage erfolgt über die Straße Hundert Morgen in einen Anliegerbereich. Eine Durchfahrt ist nicht möglich. Der Ortsteil Edingen ist mit derOEG/Linie 5 optimal an das Verkehrsnetz der VRN angebunden. Dies ermöglicht es, die nahegelegenen Städte bequem in rund 15 Minuten zu erreichen.


Grundriss


Grundriss


Umgebungskarte


Anfrage

Über unser Anfrageformular können Sie uns jederzeit eine Nachricht schreiben, Fragen stellen oder Feedback geben. Wir melden uns schnellstmöglich bei Ihnen.

(Optional)
(Optional)
(Optional)
(Optional)
(Optional)
Referenz oder Immobilien Title

Zurück zur Übersicht

Objekt anfragen

Grundriss

Grundriss

Umgebung



Scout-ID: 154703207

Seite teilen

Ihr Ansprechpartner

D&S
Projektleiter