/ 12

Naturnah und bestens angebunden: Leben in green v Viernheim


Kaufpreis
535.500,00 EUR

Wohnfläche
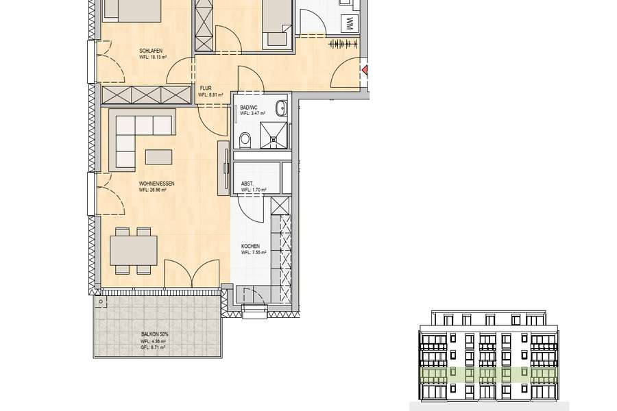
90,92 m2

Zimmer
3

Balkon / Terrasse
Keller
Personenaufzug
Gäste-WC
Provisionsfrei

Otfried-Preußler-Straße 7
68519 Viernheim

Standortkarte

Kosten

Kaufpreis:

535.500,00 EUR

Garage/Stellplatz-Kaufpreis:

25.000,00 EUR

Provision für Käufer:

keine


Ausstattung

Wohnungstyp:

Etagenwohnung

Etage:

2

Etagenzahl:

4

Schlafzimmer:

1

Badezimmer:

1

Gäste-WC:

Keller:

Personenaufzug:

Einbauküche:

Objektzustand:

Erstbezug

Erstbezug Baujahr:

2025

Qualität der Ausstattung:

gehoben

Heizungsart:

Energieträger:

Solar-Heizung

Energieausweis:

-

Haustiere:

keine Angabe

Anzahl Garage/Stellplatz:

1

Rollstuhlgerecht:


Objektbeschreibung

Unser Bauvorhaben green v Viernheim erreicht die Klassifizierung Klimafreundliches Wohngebäude mit QNG und wird mit dem besonderen Förderprogramm 297/298 der KfW-Bankengruppe unterstützt. Es qualifiziert sich dadurch für ein außergewöhnlich gutes Zinsprogramm, das erhebliche Kosteneinsparungen für Sie als Käufer mit sich bringt. Beim Erwerb einer Erstimmobilie können Sie dank"Hessengeld" bei der Grunderwerbssteuer sparen. Der erste Bauabschnitt ist abgeschlossen. Wir bieten in zwei Gebäuden einen attraktiven Wohnungsmix mit 2-4 Zimmer Eigentumswohnungen und Wohnungsgrößen von 79m² bis 113m². Eine gut durchdachte Raumaufteilung und praktische Stellflächen bietenIhnen hervorragende Möglichkeiten, sich individuell in Ihren Räumen zu verwirklichen. Alle Wohnungen erhalten Balkone oder Gartenanteile mit Südwest-Ausrichtung, die zum Verweilen bis in die Abendstunden einladen. Alle Häuser werden durch eine gemeinsame Tiefgarage verbunden und bieten ausreichend Platz für 112 PKW-Stellplätze. In den Untergeschossen befinden sich die Wohnungskeller und Technikräume. Die Müllräume sowie die Fahrradstellplätze für Besucher sind gut erreichbar in den Außenanlagen, nahe den Hauseingängen, platziert.


Lage

Viernheim liegt in Hessen, grenzt aber im Westen, Süden und Osten an Baden-Württemberg an. Mit rund 34.000 Einwohnern ist sie die zweitgrößte Stadt im südhessischen Kreis Bergstraße und verfügt über eine hervorragende BAB-Anbindung. Ob mit Fahrrad, ÖPNV oder Auto: die nächst größeren Städte Mannheim, Heidelberg und Weinheim an der Bergstraße sind in kürzester Fahrtzeit zu erreichen. Am nördlichen Stadtrand Viernheims, im beliebten Neubaugebiet Bannholzgraben II, realisieren wir als Generalunternehmer in mehreren Bauabschnitten das Projekt green v Viernheim.


Umgebungskarte


Anfrage

Über unser Anfrageformular können Sie uns jederzeit eine Nachricht schreiben, Fragen stellen oder Feedback geben. Wir melden uns schnellstmöglich bei Ihnen.

(Optional)
(Optional)
(Optional)
(Optional)
(Optional)
Referenz oder Immobilien Title

Zurück zur Übersicht

Objekt anfragen

Umgebung



Scout-ID: 143213691

Seite teilen

Ihr Ansprechpartner

D&S
Projektleiter